模具行業中的銅公電極,也稱為電極,是電火花加工中不可或缺的工具,主要用于模具的型腔加工,即模具的核心關鍵部位。銅公電極的制作和放電加工直接影響到產品的外在效果和精度。

1. 模具市場規模:中國模具行業發展較晚,但已建立起完整的現代模具工業體系,模具工業規模和技術水平取得長足發展。2017年到2023年,中國模具行業市場規模由2937億元增長至3589億元。
2. 銅公電極的材料選擇:紫銅電極因其導電性好和易加工性,是電火花加工中應用廣泛的電極材料。石墨電極在大電流的粗加工中加工速度快,且密度小,適用于大型電極。
銅鎢合金電極材料在高精密模具及一些特殊超硬合金的電火花加工中被采用,能有效抵御電火花加工時的損耗。
3. 銅公電極的加工方法:銅公電極的加工方法包括:車床加工、磨床加工、加工中心加工、線切割加工、EDM放電等,其中最常見的為CNC加工中心加工。
4. 模具電極檢測:因模具行業中的銅公電極是確保加工質量的關鍵環節,所以一般使用三坐標測量機(CMM)對電極的尺寸進行精確測量,確保其符合設計要求。
自動化的電極檢測方案更可以無縫集成到生產線中,實現在線實時檢測,提高效率并減少人為錯誤。

Croma系列三坐標測量機憑借成熟可靠的設計與制造技術、全球零部件供應鏈平臺和高標準的質量控制流程,實現測量過程中高穩定性和高效率。

3.1裝夾方式
將電極用夾具固定(一般采用平口虎鉗或自定心虎鉗),盡可能的擺放平整

3.2建立坐標系
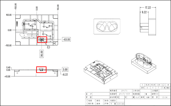
? 測點:電極的基準臺Z方向取平面A,基準臺四周取4條直線,測點如圖1所示
? 構造:兩平行線,構造中分線;兩中分線構造交點
? 坐標系:以面A找正,并作為Z軸原點;中分線長邊,作為旋轉軸線;交點為XY原點



3.3驗證基準元素
我們在大批量測量電極時,偶爾會遇到外在因素導致的基準偏差,從而造成一系列的測量事故和加工的損失,為避免這種情況的發生,在建立完坐標系后,我們需要將基準點重新測量并評價一次,
設定單獨的上下公差,如±0.02


值得注意的是:基準的合格與否,取決于基準點是否分中(對稱偏差),而不是公差范圍,因為基準臺的尺寸大小,并不影響后續的電火花加工,下圖為兩種不同的基準狀態

較差:左右對稱偏差0.1

較好:左右對稱偏差0.1?
3.4測量點的選擇
確定電極的哪些部位需要測量、哪些可以忽略、哪些部位只需簡單測量、哪些部位則需要細致檢測,是模具測量員必須掌握的關鍵技能。接下來,我們將從四個關鍵維度來探討模具測量點的選擇方法。
? 可以忽略的:避空面,在放電加工時,跟工件完全脫離的位置
? 需要測量的:放電面,在電火花加工中,銅公(電極)與工件接觸的表面
? 簡單測量的:膠位,一般指塑膠材料在模具中成型后占據的空間,這里指的是“不重要的塑膠部位”,如:不可見的結構部分、非外觀面、非承重的連接位等
? 細致檢測的:插穿、碰穿面, 與PL面平行的公母模貼合面叫碰穿面,與PL面不平行的公母模貼合面叫插穿面。在模具閉合時,這些部分需要精確配合以確保產品的形狀和尺寸

在進行測量時,應遵循兩個核心原則以確保數據的充分性和準確性:
? 最小密度加倍:按照所需最小測量密度的1.5倍來執行測量,這樣可以確保數據的完整性。例如,如果一個圓弧至少需要三個測量點,那么實際測量時應該取4到5個點。
? 曲率決定密度:在曲率較大的區域增加測量點的密度,而在曲率較小的區域則減少。對于多個面相交的區域以及細節變化較多的部分,應提高測量密度,以確保測量結果的全面性和精確性。
?
3.5測量內容和次序:
測量內容包括基準點、分型(邊界)線、輪廓線、面、結構等。測量次序應遵循先難后易、先重后輕、先配合后個體、先整體后細節的原則。例如,先測量難度較大的部分,然后測量重要的部分如基準點、分型線等
實際檢測時,我們結合電火花加工階段(EDM)的放電圖,這樣有助于更好的幫我們選擇這個電極具體測點位置,如下圖框選的地方,是放電的實際加工的位置

3.6電極的報告
電極的報告方式,一般以點輪廓的方式輸出,就是我們常說的T,通常分為兩部分,即基準和測點兩部分

基準報告

測點報告
三坐標檢測(CMM)是確保銅公電極精度的重要步驟。以下是進行三坐標檢測時的檢測思路、及注意事項:
4.1 測量難點
1. 復雜幾何形狀:
對于具復雜形狀的銅公,測量點的選擇和測量路徑的規劃可能較為困難。
2. 高精度要求:
高精度的測量要求可能需要特殊的測量設備和技巧。
3. 小尺寸和細節:
對于小尺寸和細節特征的測量可能需要高分辨率的測量設備。
4.2 檢測思路:
1. 制定檢測計劃:
確定檢測目標,選擇合適的測量策略,如接觸式或非接觸式測量。
2. 設置基準:
確定并測量基準點,用于后續測量的參照。
3. 特征測量:
測量關鍵特征,如尺寸、形狀、位置和輪廓。
4. 數據采集:
使用三坐標測量機采集數據,確保數據的準確性和完整性。
5. 數據分析:
分析測量數據,與設計模型進行比較,評估偏差。
6. 報告生成:
根據測量結果生成詳細的檢測報告。
7. 問題診斷:
如果發現偏差,分析原因并提出解決方案。
通過遵循這些檢測思路、克服產品難點并注意相關事項,可以確保三坐標檢測的準確性和有效性,從而提高銅公電極的加工質量。
Croma 系列三坐標測量機,具備高穩定性和高效率,被廣泛的應用于汽車零部件、機械加工、模具、檢具、白色家電、電動工具、農用機械,新能源汽車動力模組和自動化夾治具等行業。Croma 系列行程齊全,具備復合多傳感器技術,可